+7 (981) 988-88-02
+7 (981) 988-88-02
Барнхаус

Каркасный дом Барнхаус 80 м²

от 3.4 млн ₽
без фундамента (свой фундамент)
от 3.6 млн ₽
с фундаментом (сваи, 220 000 ₽)
Комплектация «Тёплый контур» · от 42 250 руб/м²
Площадь
80 м²
Спальни
2
Этажность
Двухэтажный
Срок строительства
55 дней
Позвонить

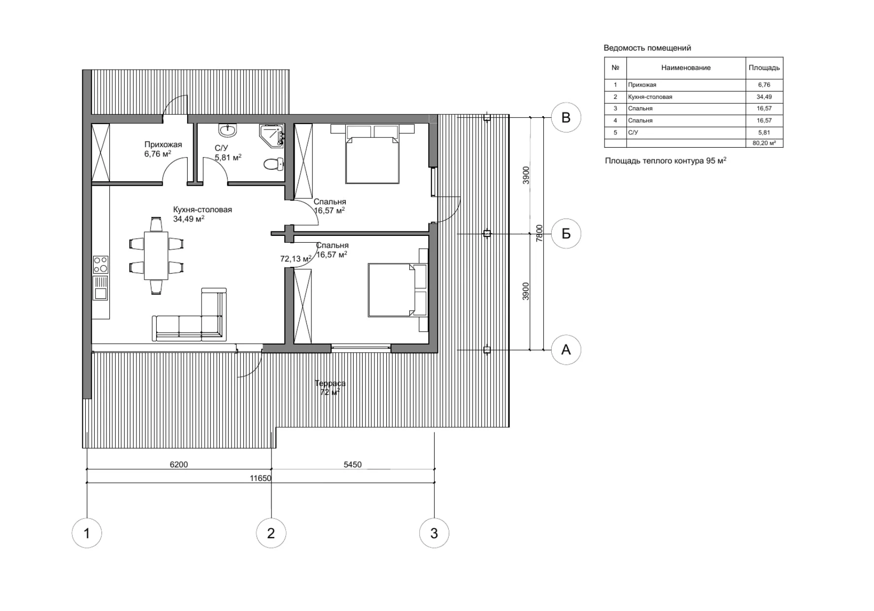
О проекте Барнхаус 80 м²

Барнхаус 80 м² — это золотая середина между компактностью и комфортом. На первом этаже: кухня-гостиная со вторым светом высотой 5,2 м, гостевой санузел и техническое помещение с котельной. Второй этаж: две изолированные спальни, полноценный санузел с душевой кабиной, антресольная зона с видом на гостиную. Фальцевая кровля из оцинкованной стали — долговечное решение, не требующее обслуживания десятилетиями. Панорамное остекление южного фасада обеспечивает естественное освещение в течение всего дня.

Характеристики и технологии

🏗
Фундамент
16 свай длиной 2,5 м с обвязкой швеллером — усиленный вариант для двухэтажной конструкции
🧱
Стены 200 мм (каркас 150 мм + контрутепление 50 мм)
Базальтовая вата Paroc Extra 150 мм + горизонтальное перекрёстное утепление Paroc 50 мм
Энергоэффективность B+
Теплопотери через стены снижены на 35% благодаря перекрёстному утеплению. Рекуператор опционально снижает расходы на отопление ещё на 20%
🌡
Отопление
Газовый котёл Buderus + радиаторы Kermi
🏔
Климат СПб/ЛО
Расчёт ветровой нагрузки для II зоны (СПб): усиленные стойки фронтонов, ветрозащита Tyvek. Снеговая нагрузка кровли до 240 кг/м²
🏠
Кровля
Фальцевая кровля, угол 38°

Технические характеристики

Параметр Значение
Общая площадь80 м²
Жилая площадь64 м²
Габариты8 × 10 м
Этажность2 этажа
Спальни2
Санузлы1 + гостевой
Высота потолков2,7 м / 5,2 м (второй свет)
ФундаментВинтовые сваи СВС-108, 16 шт.
КаркасСухая строганная доска 45×195 мм
УтеплительParoc Extra 200 мм
КровляФальцевая оцинкованная сталь
ФасадПланкен лиственница термообработанная

Часто задаваемые вопросы

Чем фальцевая кровля лучше металлочерепицы для барнхауса?
Фальцевая кровля не имеет сквозных отверстий — крепление скрытое, что исключает протечки. Срок службы 50+ лет против 25-30 у металлочерепицы. На крутых скатах барнхауса (38°) фальц эстетически выигрывает — создаёт монолитный вид характерный для амбарного стиля.
Достаточно ли 80 м² для семьи из 4 человек?
Две спальни по 14 м² и просторная кухня-гостиная 28 м² обеспечивают комфортное проживание для семьи с двумя детьми. Второй свет компенсирует ощущение тесноты. При необходимости антресольную зону можно превратить в третье спальное место или рабочий кабинет.
Какой газовый котёл подходит для барнхауса 80 м² в ЛО?
Для 80 м² с утеплением 200 мм рекомендуется настенный газовый котёл мощностью 12-16 кВт, например Buderus Logamax U072-12K. Расход газа в отопительный сезон — около 1200-1500 м³. При отсутствии газа альтернатива — электрический котёл 9-12 кВт с ночным тарифом.

Заинтересовал проект Барнхаус 80 м²?

Оставьте заявку — рассчитаем стоимость под ваш участок, подберём планировку и ответим на все вопросы.

или позвоните: +7 (981) 988-88-02

Другие проекты Барнхаус