+7 (981) 988-88-02
+7 (981) 988-88-02
Барнхаус

Каркасный дом Барнхаус 120 м²

от 5.1 млн ₽
без фундамента (свой фундамент)
от 5.3 млн ₽
с фундаментом (сваи, 220 000 ₽)
Комплектация «Тёплый контур» · от 42 250 руб/м²
Площадь
120 м²
Спальни
4
Этажность
Двухэтажный с верандой
Срок строительства
75 дней
Позвонить

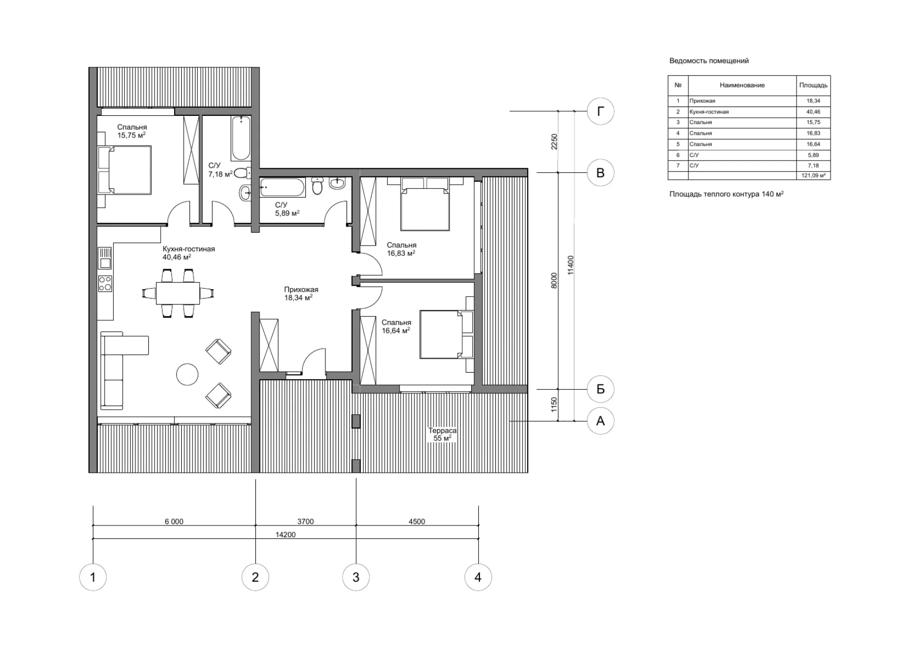
О проекте Барнхаус 120 м²

Барнхаус 120 м² — флагманский проект линейки, сочетающий амбарную эстетику с современными инженерными решениями. Первый этаж: кухня-гостиная-столовая 40 м² с панорамным остеклением и потолком 6 метров, кабинет, гостевой санузел, техническая комната. Второй этаж: мастер-спальня с en-suite ванной и гардеробной, две детские, семейный санузел. Утеплённая шведская плита с интегрированным водяным тёплым полом — фундамент и система отопления первого этажа в одном решении. Геотермальный тепловой насос извлекает тепло из грунта — COP 4,5 означает, что на каждый потраченный кВт·ч электричества вы получаете 4,5 кВт·ч тепла.

Характеристики и технологии

🏗
Фундамент
Монолитный УШП с интегрированным тёплым полом — идеален для постоянного проживания большой семьи
🧱
Стены 300 мм (каркас 200 мм + контрутепление 100 мм)
PIR-плиты Logicpir 100 мм (наружное) + базальт Rockwool 200 мм (внутреннее)
Энергоэффективность A+
Дом-термос: теплопотери 55 кВт·ч/м² в год. Рекуператор возвращает 85% тепла вытяжного воздуха. Экономия на отоплении до 45% по сравнению со стандартным каркасником
🌡
Отопление
Геотермальный тепловой насос + тёплые полы + рекуператор Blauberg
🏔
Климат СПб/ЛО
Энергоэффективный контур для климата Финского залива: тройное остекление, утеплённый цоколь, ветрозащитный экран на фасаде
🏠
Кровля
Фальцевая кровля с покрытием Pural Matt, угол 45°

Технические характеристики

Параметр Значение
Общая площадь120 м²
Жилая площадь98 м²
Габариты10 × 12 м
Этажность2 этажа
Спальни4 (мастер + 3)
Санузлы2 + гостевой
Веранда14 м²
Высота потолков3,0 м / 6,0 м (второй свет)
ФундаментУШП (утеплённая шведская плита)
КаркасКлеёный брус LVL 45×200 мм
УтеплительPIR 100 мм + Rockwool 200 мм
КровляФальцевая Pural Matt
ФасадФиброцементные панели Cedral + планкен

Часто задаваемые вопросы

Что такое утеплённая шведская плита и почему она подходит для барнхауса 120 м²?
УШП — это монолитный фундамент с встроенным утеплением XPS 300 мм и разводкой тёплого пола. Для барнхауса 120 м² УШП решает три задачи одновременно: фундамент, черновой пол и система отопления первого этажа. Строительство фундамента занимает 5-7 дней, готовность к возведению каркаса — через 28 дней после заливки.
Сколько стоит геотермальное отопление для дома 120 м²?
Установка геотермального теплового насоса (бурение 2 скважин по 70 м + оборудование) обходится в 650 000-800 000 руб. При этом ежемесячные расходы на отопление составляют 3 000-5 000 руб. зимой. Окупаемость по сравнению с газовым отоплением — 7-9 лет, с электрическим — 4-5 лет.
Можно ли адаптировать планировку барнхауса 120 м² под свои нужды?
Каркасная технология позволяет свободно менять внутреннюю планировку — несущими являются только наружные стены и центральная балка. Можно объединить две детские в одну большую комнату, перенести кабинет на второй этаж, добавить сауну вместо кладовой. Адаптация проекта занимает 3-5 рабочих дней.

Заинтересовал проект Барнхаус 120 м²?

Оставьте заявку — рассчитаем стоимость под ваш участок, подберём планировку и ответим на все вопросы.

или позвоните: +7 (981) 988-88-02

Другие проекты Барнхаус