+7 (981) 988-88-02
+7 (981) 988-88-02
Барнхаус

Каркасный дом Барнхаус 60 м²

от 2.5 млн ₽
без фундамента (свой фундамент)
от 2.8 млн ₽
с фундаментом (сваи, 220 000 ₽)
Комплектация «Тёплый контур» · от 42 250 руб/м²
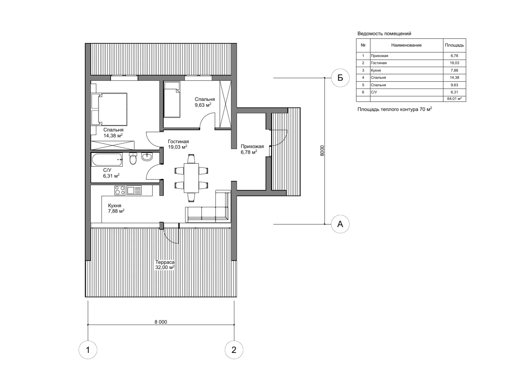
Площадь
60 м²
Спальни
1
Этажность
Одноэтажный с мансардой
Срок строительства
45 дней
Позвонить

О проекте Барнхаус 60 м²

Компактный барнхаус 60 м² — это полноценный дом для семьи из 2-3 человек или комфортная загородная дача с возможностью круглогодичного проживания. Второй свет в гостиной создаёт ощущение простора даже на скромной площади. На первом этаже — кухня-гостиная с панорамным окном, санузел и техническое помещение. На мансарде — спальня с выходом на балкон. Каркас из сухой строганной доски камерной сушки обеспечивает точность сборки и долговечность конструкции.

Характеристики и технологии

🏗
Фундамент
12 свай длиной 2,5 м — оптимально для болотистых грунтов Ленобласти
🧱
Стены 200 мм (каркас 150 мм + контрутепление 50 мм)
Базальтовая вата Rockwool Лайт Баттс 150 мм + перекрёстное утепление 50 мм
Энергоэффективность B+
Годовое потребление на отопление — около 85 кВт·ч/м². Экономия до 30% по сравнению с брусовым домом аналогичной площади
🌡
Отопление
Электрический котёл + тёплый пол первого этажа
🏔
Климат СПб/ЛО
Адаптирован для климата СПб и ЛО: утепление стен 200 мм, кровля выдерживает снеговую нагрузку до 240 кг/м²
🏠
Кровля
Металлочерепица Grand Line, угол 40°

Технические характеристики

Параметр Значение
Общая площадь60 м²
Жилая площадь48 м²
Габариты6 × 10 м
Этажность1 этаж + мансарда
Спальни1
Санузлы1
Высота потолков2,7 м / 4,5 м (второй свет)
ФундаментВинтовые сваи СВС-108, 12 шт.
КаркасСухая строганная доска 45×145 мм
УтеплительRockwool 200 мм
КровляМеталлочерепица Grand Line
ФасадИмитация бруса лиственница

Часто задаваемые вопросы

Можно ли жить в барнхаусе 60 м² круглый год в Ленинградской области?
Да, утепление 200 мм базальтовой ватой соответствует нормам для климатической зоны СПб и ЛО. Стены, кровля и пол утеплены по единому контуру без мостиков холода. Годовое потребление на отопление — около 85 кВт·ч/м², что сопоставимо с кирпичным домом толщиной стен 510 мм.
Сколько стоит фундамент для барнхауса 60 м² на болотистом грунте?
Для данного проекта используется 12 винтовых свай СВС-108 длиной 2,5 м. На болотистых грунтах Ленобласти это оптимальное решение — монтаж за 1 день, несущая способность каждой сваи 4-5 тонн. Стоимость свайного фундамента в 2,5-3 раза ниже ленточного.
Подойдёт ли барнхаус 60 м² для семьи с ребёнком?
Планировка предусматривает спальню на мансарде и просторную кухню-гостиную на первом этаже. Для семьи с одним ребёнком это комфортный вариант, особенно если использовать пространство под лестницей для хранения. При необходимости возможна пристройка дополнительного модуля в будущем.

Заинтересовал проект Барнхаус 60 м²?

Оставьте заявку — рассчитаем стоимость под ваш участок, подберём планировку и ответим на все вопросы.

или позвоните: +7 (981) 988-88-02

Другие проекты Барнхаус