+7 (981) 988-88-02
+7 (981) 988-88-02
Сканди

Каркасный дом Сканди 50 м²

от 2.1 млн ₽
без фундамента (свой фундамент)
от 2.3 млн ₽
с фундаментом (сваи, 220 000 ₽)
Комплектация «Тёплый контур» · от 42 250 руб/м²
Площадь
50 м²
Спальни
1
Этажность
Одноэтажный
Срок строительства
40 дней
Позвонить

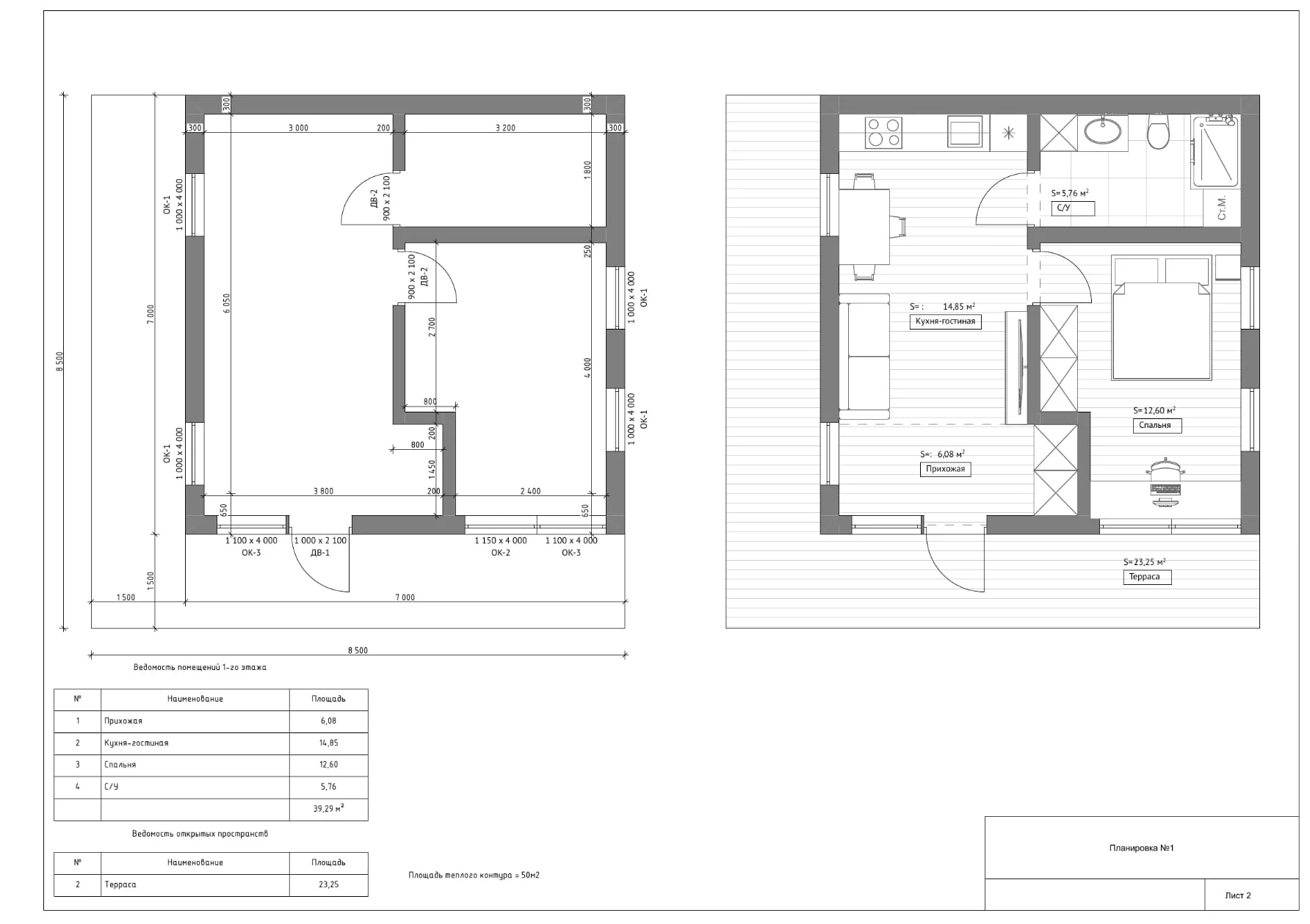
О проекте Сканди 50 м²

Сканди 50 м² — рациональный одноэтажный дом в скандинавском стиле. Никакого лишнего декора — только чистые линии, большие окна и функциональное пространство. Планировка: кухня-гостиная 24 м² с панорамным остеклением южного фасада, спальня 14 м², санузел с душевой и стиральной машиной, прихожая с гардеробом. Скандинавская каркасная технология — двойной ригельный каркас с заполнением эковатой — исключает мостики холода, характерные для обычного каркаса. Воздушный тепловой насос Mitsubishi Zubadan работает до -25°C, обеспечивая отопление зимой и охлаждение летом.

Характеристики и технологии

🏗
Фундамент
10 свай — компактный свайный ростверк для одноэтажного строения, монтаж за 1 день
🧱
Стены 200 мм (каркас 200 мм — скандинавская технология без контрутепления)
Эковата задувная 200 мм — бесшовный контур по скандинавской технологии
Энергоэффективность B+
Скандинавская каркасная технология с усиленным утеплением 200 мм. Энергоэффективные окна (Uw 1,0) компенсируют увеличенную площадь остекления
🌡
Отопление
Воздушный тепловой насос Mitsubishi + тёплый пол
🏔
Климат СПб/ЛО
Односкатная кровля с уклоном от фасада — снег сходит на хозяйственную сторону дома. Большие окна ориентированы на юг для максимального солнечного прогрева
🏠
Кровля
Фальцевая кровля, односкатная, угол 12°

Технические характеристики

Параметр Значение
Общая площадь50 м²
Жилая площадь42 м²
Габариты5 × 10 м
Этажность1 этаж
Спальни1
Санузлы1
Высота потолков2,7 м (фасад) / 2,3 м (тыл)
ФундаментВинтовые сваи СВС-108, 10 шт.
КаркасДвойной ригельный (скандинавский)
УтеплительЭковата задувная 200 мм
КровляФальцевая односкатная
ФасадКрашеная доска (скандинавская краска Nordica)

Часто задаваемые вопросы

Что такое скандинавская каркасная технология и чем она отличается от обычной?
В скандинавском каркасе стойки наружной и внутренней стены смещены относительно друг друга — это исключает мостики холода через деревянные элементы. Эковата задувается в полость сплошным слоем. Ригель (горизонтальная балка) несёт нагрузку перекрытия, позволяя свободно размещать окна любого размера без перемычек.
Работает ли воздушный тепловой насос при морозе -25°C в Ленобласти?
Mitsubishi Zubadan — специальная серия для холодного климата, сохраняет 80% мощности при -25°C. COP при -15°C составляет 2,2 — на каждый кВт·ч электричества вы получаете 2,2 кВт·ч тепла. Для экстремальных морозов ниже -25°C автоматически включается встроенный электронагреватель.
Не будет ли протекать плоская (односкатная) кровля?
Угол 12° — это не плоская, а малоуклонная кровля. Фальцевое покрытие без сквозных отверстий герметично даже при уклоне от 3°. Используем двойной стоячий фальц с герметиком. Снеготаяние отводится через организованный водосток. За 10+ лет практики протечек на фальцевых односкатных кровлях не было.

Заинтересовал проект Сканди 50 м²?

Оставьте заявку — рассчитаем стоимость под ваш участок, подберём планировку и ответим на все вопросы.

или позвоните: +7 (981) 988-88-02

Другие проекты Сканди