+7 (981) 988-88-02
+7 (981) 988-88-02
Сканди

Каркасный дом Сканди 100 м²

от 4.2 млн ₽
без фундамента (свой фундамент)
от 4.4 млн ₽
с фундаментом (сваи, 220 000 ₽)
Комплектация «Тёплый контур» · от 42 250 руб/м²
Площадь
100 м²
Спальни
3
Этажность
Двухэтажный со вторым светом
Срок строительства
65 дней
Позвонить

О проекте Сканди 100 м²

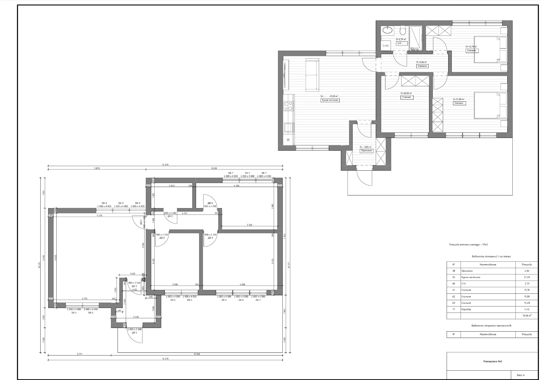
Сканди 100 м² — эталон скандинавского домостроения, адаптированный для климата Санкт-Петербурга. Двойной каркас 300 мм с задувкой эковатой, герметичный контур с проверкой blower door тестом, рекуператор с КПД 90% — дом потребляет на отопление менее 50 кВт·ч/м² в год. Первый этаж: кухня-гостиная 32 м² со вторым светом и панорамным остеклением, кабинет 10 м², санузел, техническая комната. Второй этаж: мастер-спальня 16 м² с ванной, две детские по 11 м², санузел, антресольная зона над гостиной. Геотермальный тепловой насос NIBE F1155 — флагман шведского отопительного рынка, COP 4,5 означает 4,5 кВт тепла на каждый кВт электричества.

Характеристики и технологии

🏗
Фундамент
УШП с усиленным армированием для двухэтажной конструкции. Интегрированный тёплый пол первого этажа
🧱
Стены 300 мм (двойной скандинавский каркас 200+100 мм)
Эковата задувная 300 мм (стены) + ЭППС 300 мм (УШП) + эковата 400 мм (кровля)
Энергоэффективность A+
Приближен к стандарту пассивного дома: теплопотери 50 кВт·ч/м² в год. Герметичность контура проверяется blower door тестом. Рекуператор возвращает 90% тепла вытяжного воздуха
🌡
Отопление
Геотермальный тепловой насос NIBE + тёплые полы + рекуператор Systemair
🏔
Климат СПб/ЛО
Энергоэффективный контур приближен к стандарту пассивного дома: blower door test < 1,5 воздухообмена/час при 50 Па
🏠
Кровля
Фальцевая кровля Ruukki Classic, двускатная, угол 22°

Технические характеристики

Параметр Значение
Общая площадь100 м²
Жилая площадь84 м²
Габариты8 × 12,5 м
Этажность2 этажа
Спальни3
Санузлы2
Высота потолков2,8 м / 5,5 м (второй свет)
ФундаментУШП усиленная
КаркасДвойной скандинавский 300 мм
УтеплительЭковата 300 мм (стены), 400 мм (кровля)
КровляФальцевая Ruukki Classic
ФасадКрашеная фасадная доска + HPL-панели

Часто задаваемые вопросы

Что такое blower door тест и зачем он нужен каркасному дому?
Blower door тест — проверка герметичности дома вентилятором в дверном проёме. Создаётся давление 50 Па и измеряется воздухообмен. Для пассивного дома норма — менее 0,6/час, мы гарантируем менее 1,5/час. Негерметичный дом теряет до 40% тепла через щели — blower door выявляет все утечки до финишной отделки.
Чем геотермальный насос NIBE лучше воздушного?
Геотермальный насос берёт тепло из грунта, где температура стабильна +5-8°C круглый год. COP 4,5 при любой наружной температуре. Воздушный насос при -20°C имеет COP 1,8-2,0 — эффективность падает вдвое. Для 100 м² с утеплением 300 мм геотермальный насос экономит 15 000-20 000 руб./год по сравнению с воздушным.
Сколько стоит эксплуатация сканди-дома 100 м² в год?
Отопление (геотермальный насос): 1 200-1 800 кВт·ч/мес зимой × 5,5 руб. = 6 600-9 900 руб./мес, за сезон 40 000-55 000 руб. Электричество (быт + рекуператор): 300-400 кВт·ч/мес = 1 650-2 200 руб./мес. Обслуживание: 20 000-25 000 руб./год. Итого: 70 000-95 000 руб./год, или 6 000-8 000 руб./мес.

Заинтересовал проект Сканди 100 м²?

Оставьте заявку — рассчитаем стоимость под ваш участок, подберём планировку и ответим на все вопросы.

или позвоните: +7 (981) 988-88-02

Другие проекты Сканди