+7 (981) 988-88-02
+7 (981) 988-88-02
Кантри

Каркасный дом Кантри 200 м²

от 8.4 млн ₽
без фундамента (свой фундамент)
от 8.7 млн ₽
с фундаментом (сваи, 220 000 ₽)
Комплектация «Тёплый контур» · от 42 250 руб/м²
Площадь
200 м²
Спальни
5
Этажность
Двухэтажный с цокольным этажом
Срок строительства
100 дней
Позвонить

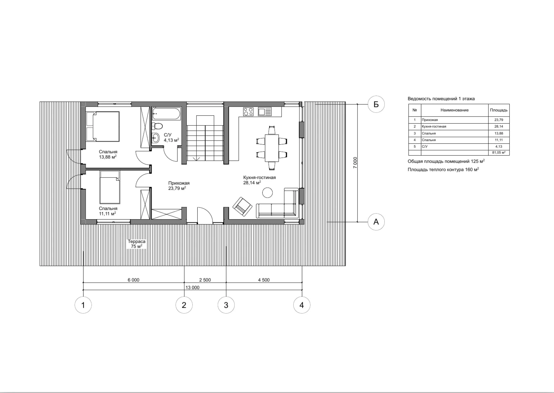
О проекте Кантри 200 м²

Кантри 200 м² — загородная усадьба в классическом американском стиле для большой семьи. Цокольный этаж: гараж на 2 машины (36 м²), котельная, кладовая, мастерская или сауна. Первый этаж: парадная прихожая с лестницей, кухня-столовая 20 м², гостиная 25 м² с декоративным камином и выходом на крытую террасу, кабинет 12 м², гостевой санузел. Второй этаж: мастер-спальня 20 м² с en-suite ванной и гардеробной, четыре спальни по 12-14 м², семейный санузел с ванной, постирочная. Композитная черепица Gerard совмещает лёгкость стального листа с эстетикой натуральной черепицы — гарантия производителя 50 лет.

Характеристики и технологии

🏗
Фундамент
Монолитный ленточный фундамент с цокольным этажом 60 м² — гараж, котельная, кладовая, мастерская
🧱
Стены 250 мм (каркас 200 мм + контрутепление 50 мм)
Базальтовая вата Rockwool Фасад Баттс 200 мм + Rockwool 50 мм
Энергоэффективность A
Тройной контур утепления: цоколь 200 мм ЭППС, стены 250 мм, кровля 300 мм. Рекуператор Blauberg Vento Expert. Расход на отопление — 72 кВт·ч/м² в год
🌡
Отопление
Газовый конденсационный котёл Viessmann 35 кВт + тёплые полы + радиаторы + камин декоративный
🏔
Климат СПб/ЛО
Цокольный этаж ниже глубины промерзания (1,5 м) — естественная стабильность температуры +8-12°C без отопления. Гараж на 2 машины отапливается до +5°C от общей системы
🏠
Кровля
Композитная черепица Gerard, вальмовая, угол 30°

Технические характеристики

Параметр Значение
Общая площадь200 м² (+ цоколь 60 м²)
Жилая площадь165 м²
Габариты12 × 16 м
Этажность2 этажа + цоколь
Спальни5 (мастер + 4)
Санузлы3
Гараж36 м² (2 авто, цоколь)
Терраса16 м² (крытая)
Высота потолков3,0 м / 2,5 м (цоколь)
ФундаментЛенточный заглублённый + цоколь
КаркасКлеёный брус LVL 45×200 мм
УтеплительRockwool 250 мм
КровляКомпозитная черепица Gerard
ФасадШтукатурка + фиброцемент + декор

Часто задаваемые вопросы

Реально ли построить каркасный дом 200 м² за 100 дней?
Да, каркасная технология позволяет вести работы параллельно: пока возводятся стены, монтируется кровля. Нет «мокрых» процессов, не нужна усадка. Фундамент — 14 дней, каркас — 20 дней, кровля и фасад — 25 дней, инженерия — 20 дней, отделка — 21 день. Критический путь — 100 рабочих дней при бригаде 5-6 человек.
Не будет ли сыро в цокольном этаже на влажных грунтах ЛО?
Цокольный этаж защищён комплексно: гидроизоляция стен (наплавляемая Технониколь + мембрана), дренажная система по периметру с отводом в колодец, утепление ЭППС 200 мм снаружи исключает точку росы на стене. Приточно-вытяжная вентиляция с осушителем поддерживает влажность 40-50%. Перед строительством обязательна геология участка.
Какова стоимость содержания дома-усадьбы 200 м² в год?
Газовое отопление при утеплении 250 мм: 4 500-5 500 м³ газа/сезон — 36 000-50 000 руб. Электричество (свет, бытовая техника, рекуператор): 400-600 кВт·ч/мес — 2 200-3 300 руб./мес. Обслуживание (чистка котла, фильтры, мелкий ремонт): 30 000-40 000 руб./год. Итого: 90 000-130 000 руб./год, или 7 500-11 000 руб./мес.

Заинтересовал проект Кантри 200 м²?

Оставьте заявку — рассчитаем стоимость под ваш участок, подберём планировку и ответим на все вопросы.

или позвоните: +7 (981) 988-88-02

Другие проекты Кантри